Blog SEN Schools

Designing Hygiene Rooms for Schools – Top Tips

6 March 2025 5 min read By Lucy Fisher
Designing Hygiene Rooms for Schools – Top Tips

1. Understand Legal and Regulatory Requirements

Before designing a hygiene room, it is essential to familiarise yourself with relevant regulations such as the Equality Act 2010 and Building Regulations (Part M) in the UK. These guidelines ensure that facilities are accessible and fit for purpose. Compliance with these regulations not only guarantees safety and ease of use, but also demonstrates a school’s commitment to inclusivity and equal opportunities for all students.

2. Location and Accessibility

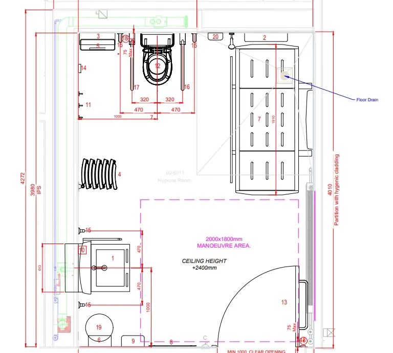
The hygiene room should be situated in a location that is easily accessible from classrooms and other key areas within the school. Wide doorways, with a minimum width of 900mm, should be provided to accommodate wheelchair users. Where possible, the hygiene room should be positioned on the ground floor, but if it is located on an upper level, lift access must be available.

Clear and visible signage should indicate the hygiene room’s location to ensure ease of access. Additionally, the placement of hygiene rooms should be considered in relation to other essential facilities, such as medical rooms, to improve convenience and efficiency in responding to student needs.

3. Essential Hygiene Room Requirements

A well-equipped hygiene room must include several key elements to ensure functionality and accessibility. A height-adjustable changing bench is crucial, allowing carers to assist students safely and comfortably. A ceiling-mounted or mobile hoist system is necessary for lifting students safely from wheelchairs to the changing bench or toilet.

The hygiene room should also feature an accessible toilet, ideally a peninsular toilet, which provides space on both sides for carers to assist as needed. A washbasin fitted with lever taps ensures ease of use for those with limited dexterity.

The flooring should be non-slip to reduce the risk of accidents, and adequate space, with a recommended minimum size of 3m x 3m, is essential for easy manoeuvrability. Privacy considerations should also be incorporated, including locks on doors, privacy screens, and appropriate signage to maintain dignity and comfort.

Schools should also ensure that the room is spacious enough to accommodate multiple carers where required, providing the necessary flexibility for effective support.

4. Hygiene and Infection Control Measures

To uphold high hygiene standards, the surfaces on walls and floors should be made from easy-to-clean, non-porous materials. Hand sanitisers and soap dispensers should be installed at accessible heights to encourage regular hand hygiene. Waste disposal should be facilitated by touch-free bins, and adequate ventilation should be ensured to prevent odour build-up and maintain air quality.

Frequent cleaning schedules should be established, with clear protocols to prevent the spread of infections. Schools should consider investing in high-quality, antimicrobial surfaces and touchless fixtures to further enhance hygiene standards and minimise contamination risks.

5. Comfort and Sensory Considerations

The hygiene room should be designed to create a calming and comfortable atmosphere. Soft lighting and neutral colours can help reduce sensory overload for students with sensory sensitivities. Acoustic insulation can minimise noise levels, making the space more comfortable for those who may be sensitive to sound.

Heating should also be adjustable to ensure that students remain comfortable during personal care routines. Additionally, schools should consider incorporating sensory-friendly elements such as adjustable lighting levels, soft-textured surfaces, and soothing background sounds to cater to the specific needs of students with sensory processing challenges.

6. Staff Training and Maintenance

Staff must receive proper training on the correct use of hoists and other equipment to ensure safety and efficiency. Regular maintenance checks should be conducted on all equipment to confirm that it remains in good working order. Clear guidelines on hygiene room usage and cleaning protocols should be established and communicated to all relevant staff members.

Training should also include best practices for assisting students with dignity and respect, as well as emergency procedures in case of equipment malfunctions. Investing in professional development and ongoing refresher courses for staff will help maintain high standards of care and ensure consistent, effective support for students.

Conclusion

A well-designed hygiene room plays a vital role in supporting students’ dignity, safety, and independence in schools. Proper planning, adherence to regulations, and attention to detail will ensure that the hygiene room meets the highest standards of accessibility and care. Schools looking for comprehensive hygiene room solutions can explore our hygiene room packages to ensure they are fully equipped with high-quality, inclusive facilities tailored to the needs of all students.

FAQs for Hygiene Room Design in Schools

What is a hygiene room in a school?

A hygiene room is a specialised facility designed to support students with additional care needs, providing accessible toilets, changing benches, and hoist systems.

What are the legal requirements for hygiene rooms in UK schools?

Schools must comply with the Equality Act 2010 and Building Regulations (Part M) to ensure accessibility and inclusivity.

Where should a hygiene room be located?

Hygiene rooms should be easily accessible from classrooms, ideally on the ground floor with wide doorways and lift access if on an upper level.

What essential equipment should a hygiene room have?

Key features include a height-adjustable changing bench, ceiling or mobile hoist system, accessible toilet, non-slip flooring, and privacy screens.

How can schools maintain hygiene and infection control?

Using antimicrobial surfaces, touch-free dispensers, proper ventilation, and regular cleaning schedules helps maintain hygiene standards.

What sensory considerations should be included?

Soft lighting, acoustic insulation, and sensory-friendly elements like adjustable lighting and calming colours help create a comfortable environment.

Why is staff training important for hygiene room use?

Proper training ensures safe use of hoists and equipment, maintains dignity for students, and supports effective hygiene practices.

How can schools ensure hygiene rooms meet accessibility standards?

Following government regulations, consulting accessibility experts, and using inclusive design principles ensures compliance and usability.