Blog Changing Places

Designing the Perfect Changing Places Toilet: Best Practices & Innovations

25 September 2025 5 min read By Lucy Fisher
Designing the Perfect Changing Places Toilet: Best Practices & Innovations

Creating a perfect Changing Places toilet is about more than “meeting spec”. It’s about dignity, independence, and reducing stress for people with complex needs and their carers. Below is an up-to-date, design-led playbook that combines the essential elements from British Standards with the most innovative features now being implemented in public buildings across the UK.

 

What the law and standards require (quick refresher)

In England, large publicly accessible buildings (e.g., major venues, transport hubs, large retail and leisure developments) must provide a Changing Places toilet under Approved Document M (Volume 2); this duty has applied to new builds and certain major refurbishments since January 2021, and the guidance was refreshed in 2024.

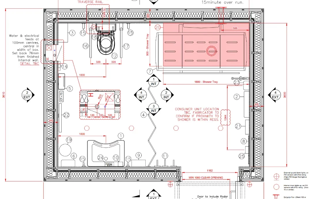
Core dimensional and equipment expectations are set out in BS 8300-2:2018. So a typical Changing Places has: 

  • at least 12 m² clear floor area (approximately 3 m × 4 m, 2.4 m height) 
  • a peninsular WC with transfer space on both sides
  • a height-adjustable adult-sized changing bench
  • a ceiling-track hoist
  • grab rails and an optional shower

Tip: Many local authorities also expect a 200 kg safe working load (SWL) across hoist, track and bench, so check this early with your equipment supplier.

 

Best-practice layout that really works

  • True peninsular WC: 1000 mm clear both sides, drop-down rails on either side, and wall-mounted vertical rails to support standing turns.
  • Generous, unobstructed circulation: Avoid floor furniture – keep bins and storage off the floor and out of transfer corridors.
  • Ceiling-track hoist coverage: Continuous H-frame coverage from door to bench to WC (and shower if fitted) minimises double-handling.
  • Height-adjustable bench and basin: Electric adjustment supports user needs and safe manual handling for carers.
  • Alarm cords to the floor: Fit at least two, reachable from the WC and the floor; visual and audible alarms must be obvious throughout.
  • Tactile, high-contrast wayfinding: Clear, high-contrast signage and controls, with braille/tactile labels, reduce cognitive load.
  • Good acoustics and lighting: Softer reverberation and even, non-glare lighting calm the space and aid lip-reading/visual cues. 

The latest innovations enhancing user experience

Contactless and voice-assist controls: Automatic taps, flush plates and door operators reduce effort and improve hygiene.

Smart monitoring: IoT sensors flag hoist faults or consumables running low, keeping facilities reliably open.

Modular CPT pods: Mobile units deliver consistent quality and allow quick installation in parks, attractions, or retrofits.

User-friendly finishes and layout: Antimicrobial, easy-clean surfaces, thoughtful lighting, calm acoustics, and discreet storage all enhance dignity and comfort.

 

Funding and policy landscape

England’s central Changing Places fund closed on 31 March 2025, but local routes (planning obligations, accessibility budgets, and operator capex) continue. In Scotland, a new two-year £10 million fund opened in August 2025 to expand provision. Keep an eye on local authority prospectuses and devolved-nation schemes. 

 

Specification checklist (designer’s quick run-through)

  1. Space and structure: 12 m² minimum, clear approach, robust structure for 200 kg SWL hoist and bench.
  2. Equipment: Peninsular WC, height-adjustable adult bench, height-adjustable basin, full-coverage ceiling-track hoist, privacy screen, alarm cords to floor, large sanitary bin, optional shower.
  3. Power and services: Dedicated RCD-protected circuits for hoist/bench, emergency lighting and alarm beacons, thermostatic controls, good drainage and anti-flood measures.
  4. Finishes: Non-slip flooring, coved skirtings, wipe-clean walls, high-contrast colour scheme (rails vs background), easy-clean metallic surfaces.
  5. User experience: Contactless controls, calm acoustics, even lighting, clear signage (including braille/tactile), storage for slings/PPE, hooks and shelves placed for real-world reach.

 

Common mistakes to avoid

  • Shrinking the room to “make it fit”: transfers and carer teamwork rely on generous, clear space.
  • Interrupted hoist coverage that forces risky manual manoeuvres.
  • Alarm cords cut short (they must reach the floor).
  • Poor contrast that hides grab rails and controls.
  • Under-specced loads: verify SWL across the track, fixings and substrate.

 

Conclusion

A best-in-class Changing Places toilet combines regulatory compliance with human-centred design; effortless transfers, intuitive controls, low-stress acoustics and lighting, and reliable kit that’s always ready. Combine the BS 8300-2 baseline with modern contactless controls, smarter maintenance, and modular delivery where helpful and publish your facility so people can plan with confidence.

 

FAQs

1. What size should a Changing Places toilet be?

At least 12 m² (about 3 m × 4 m, 2.4 m height), with space both sides of a peninsular WC and clear circulation to the bench and hoist.

2. Where are Changing Places mandatory?

In England, many large new public buildings and certain major refurbishments must include a Changing Places under Approved Document M (with 2020 changes carried into the 2024 edition). Local policy may add expectations.

3. What safe working load should I design to?

Many authorities specify 200 kg SWL for the structure, hoist and bench. 

4. Are there funds to help pay for Changing Places?

England’s central fund closed on 31 March 2025, but local/developer funding remains. Scotland launched a £10 million fund in August 2025. Check current national and local schemes.

5. Which innovations most improve user experience?

Contactless and voice-assist controls, smart monitoring to keep facilities operational, modular pods for faster installation, and user-friendly finishes such as easy-clean surfaces and calming lighting.